Gasesti materiale de constructii aici – https://l.profitshare.ro/l/7961740
Daca nu te intereseaza constructiile si te intereseaza make-up https://l.profitshare.ro/l/8627389 Daca nu te intereseaza nici constructii nici make-up intra aici –https://l.profitshare.ro/l/8627390
Ultimele video-uri adaugate pe canalul de youtube.
1. Casuta pentru copii, realizata din Lemn – Farmhouse Style
2. Casa Duplex de vanzare Mosnita Noua / 3 dormitoare si 2 bai / 118 metri patrati utili https://www.youtube.com/watch?v=8JyJwuzPiaQ
3. Animatie video Casa Parter Design Interior si Exterior #223
4. Before And After – Proiect Vs Realitate Partea 1
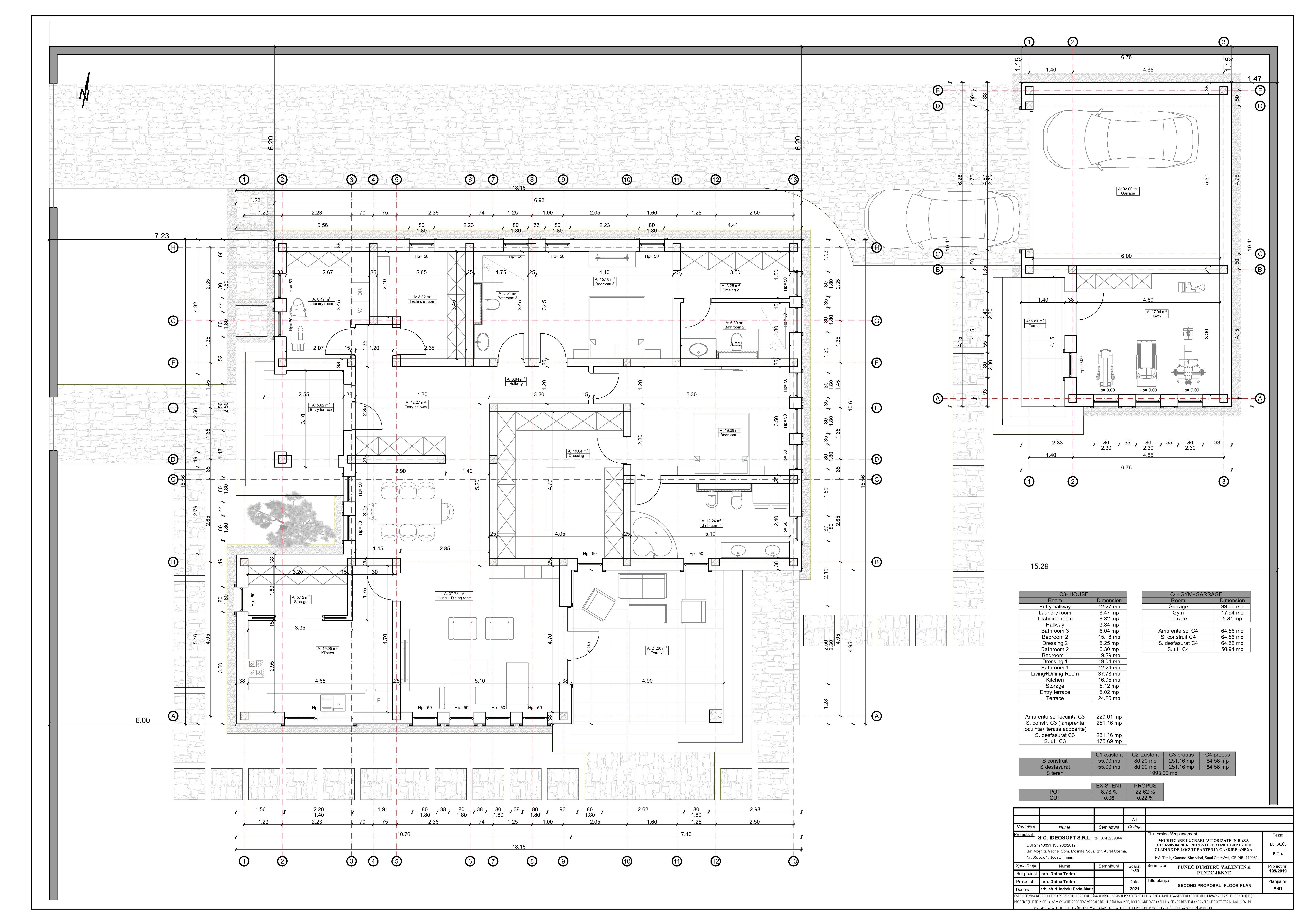
Va oferim o gama larga de proiecte de case, design interior si animatii video in arhitectura.
Detalii contact :
0745-259.044 –
e-mail: magazincasa@gmail.com
http://arhiconstruct.blogspot.ro



















